Mangalam Life Park
Mangalam Lifepark is a 2 & 3 BHK LIVE Homes located on Moshi-Alandi Road to improve our customers’ lifestyles at an affordable price.
Mangalam Lifepark will be a landmark, with a massive 75+ amenities for all areas of our daily lives. It includes exclusive amenities for ladies, which are being introduced for the first time in PCMC. Ladies exclusive amenities include a covered swimming pool, an exclusive club house for kitty parties, a separate air-conditioned Gymnasium for ladies, and much more. We also created a wide range of health amenities for youngsters to be healthy and fit in this online era, including a cricket pitch, netted court, swimming pool, basketball ball court, and so on.

Project Feature – Mangalam Life Park
| Land Parcel | 5.5 Acer |
| Type | 2 BHK | 3 BHK |
| Total Tower | 9 |
| Floor | 12 Floor +2 Level Parking |
| Possession | August -25 & Dec-26 |
PRICE & CARPET AREA – Mangalam Life Park
| TYPE | CARPET AREA | PRICE |
| 2 BHK | 562-695 Sq. Ft. | 35 Lakh * - 42 Lakh * |
| 3 BHK | 800-908 Sq.Ft. | 48 Lakh* - 56 48 Lakh* |
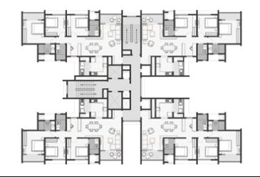
FLoor Plan & Unit Layout



Amenities

Gallery Mangalam Life Park







Scan For Rera

P52100047611
This project has been registered under MAHA RERA Registration and is available on the website:
Similar Properties Check Here
Vaastu Dream Moshi Phase 111 Nearing Possession
Vaastu Dream Moshi By – Vaastu Developer Location – Dehu Alandi Rd, Near SNBP School...
Vaanya Woodsville Moshi Pharande Developer
Vaanya Woodsville Moshi– After successfully launching three phases of Woodsville, we decided to take the...
Utopia Gold Moshi
Utopia Gold Moshi...



